Tweety użytkownika @PtaKAGENCJA

PTAK NIERUCHOMOŚCI
ul. Ślusarska 10/1, 61-778 Poznań
(61) 8 515-313
office@ptak.poznan.pl

Mieszkanie, Poznań, Poznań-Stare Miasto

Więcej mieszkań

Nr oferty:

430/4156/OMS

Lokalizacja:

Poznań,
Poznań-Stare Miasto,
os. Stefana Batorego

Typ transakcji:

Sprzedaż

Cena:

429000 zł

Cena m2:

5797.3 m2

Pow. domu:

74 m2

Budynek:

Niski blok

Stan budynku:

Bardzo dobry

Stan prawny:

Własność

Rok budowy:

2008r

Materiał:

Cegła

Pokoje:

3

Piętro:

2/3

Stan:

Dobry

Typ mieszkania:

Rozkładowe

Wolne od:

2016-01-15 00:00:00

Balkon:

tak

Internet:

tak

Kablówka:

tak

Intercom:

tak

Drukuj

To ogłoszenie jest już nieaktualne.

Zapoznaj się z innym naszymi ogłoszeniami.

Nr oferty:

430/4156/OMS

Lokalizacja:

Poznań,
Poznań-Stare Miasto,
os. Stefana Batorego

Typ transakcji:

Sprzedaż

Cena:

429000 zł

Cena m2:

5797.3 m2

Pow. domu:

74 m2

Budynek:

Niski blok

Stan budynku:

Bardzo dobry

Stan prawny:

Własność

Rok budowy:

2008r

Materiał:

Cegła

Pokoje:

3

Piętro:

2/3

Stan:

Dobry

Typ mieszkania:

Rozkładowe

Wolne od:

2016-01-15 00:00:00

Balkon:

tak

Internet:

tak

Kablówka:

tak

Intercom:

tak


Więcej mieszkań
mieszkania

Opis mieszkania

Bezpieczna transakcja z pośrednikiem – 20 lat doświadczeń!

POZNAŃ SPRZEDAŻ MIESZKANIE PIĄTKOWO, 3 pok., NOWE , NISKI BLOK, BALKON

Mieszkanie aranżowane przez architekta wnętrz.

Mieszkanie do Sprzedaży 3 pokojowe o pow. 74 m2, położone na Piątkowie, os. Batorego na II piętrze w niskim 3 kondygnacyjnym bloku z 2008r. Wolne od zaraz.

Blok jest ocieplony, otynkowany, zbudowany z cegły w 2008r.

Układ niezależny, mieszkanie przestronne, jasna okna, wychodzą na zachód i południe.

Pokoje ustawne /kwadrat/ + jasna, duża kuchnia, obok duża łazienka, osobne wc , przestronny korytarz.

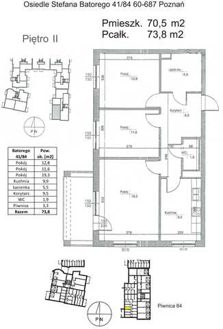
UKŁAD:

Pokój dzienny 19,3m2 z wyjściem na duży balkon 7,5m2- od strony południa
Pokój 12,8m2
Pokój 11,4m2
Kuchnia 9,9m2
Łazienka 5,7m2
Wc 2,1m2
Korytarz 9,5m2
Piwnica 3,3m2

Do mieszkania przynależy piwnica i możliwość korzystania z wózkarni.

Mieszkanie jest bardzo jasne, posiada dużo okien, widok na zachodnią i południową część miasta.

Układ mieszkania jest naprawdę ładny i funkcjonalny.

Okna są plastikowe, w oknach żaluzje, zabezpieczenie otwierania okien na kluczyk /ochrona dla małych dzieci/ Jest balkon.

Mieszkanie idealne dla rodziny, dzieci mogą się swobodnie bawić na korytarzu . Balkon jest w kafelkach.

Na podłogach deska barlinecka, w korytarzu i kuchni, łazience- płytki.

Nowoczesne drzwi do wszystkich pomieszczeń typu Porta.

Drzwi wejściowe zewnętrzne zrobione na zamówienie , posiadają certyfikat, antywłamaniowe.

Kuchnia pozostaje wyposażona w nowoczesną zabudowę kuchenną i sprzęt AGD : lodówka Liebherr, piekarnik, płyta ceramiczna, zmywarka
Siemens.

W łazience wanna wanna akrylowa i wygodny prysznic 95m, zabudowa łazienkowa na wymiar.

Ściany gipsowane białe, wysokość pomieszczeń 2.63 Korytarz zabudowany- 2 szafy typu Komandor.

Czynsz: 550zł /mc/5 osób / sprzątanie , ogrzewanie, ciepła i zimna woda- zaliczkowo.
W cenie pozostaje zabudowa kuchenna ze sprzętem AGD i 2 szafy typu Komandor.

Otoczenie: ładne widoki z okien na Rezerwat Żurawiniec, bloki oddalone, plac zabaw i boisko do koszykówki i boisko Orlik, siłownia 2015
W sąsiedztwie: las, pływalnio, szkoły, przedszkola, Tesco, Aldi, Kampus Morasko.

Komunikacja: szybki tramwaj i dworzec autobusowy.

Cena 429.000 zł.




mieszkaniamieszkaniamieszkaniamieszkaniamieszkaniamieszkaniamieszkaniamieszkaniamieszkaniamieszkaniamieszkaniamieszkaniamieszkaniamieszkaniamieszkaniamieszkaniamieszkania
Joanna Modrowska
Joanna Modrowska

531 561 233
modrowska@ptak.poznan.pl

PTAK NIERUCHOMOŚCI
Osiedle Na Murawie 13 lok. 2,
61-655 Poznań
(61) 8 515-313
office@ptak.poznan.pl

Joanna Modrowska

Masz pytanie? Chętnie odpowiem!

Oferty specjalne
sprzedaż domów poznań

Puszczykowo

Dom na sprzedaż

Pow. domu346m2

pow. działki3578m2

Pokoje6

Cena1850000

działki na sprzedaż

Poznań, Fabianowo-Kotowo

Działka na sprzedaż

Pow.1922m2

Typ Budowlana

Cena380000